Tổng hợp những mẫu thiết kế nhà ống 2 tầng 5x20m xu hướng mới nhất 2025

Mẫu thiết kế nhà ống 2 tầng 5x20m không quá đắt đỏ và có thẩm mỹ cao nên được nhiều người yêu thích. Cùng Trường Sinh tham khảo các mẫu nhà ống 2 tầng đẹp, làm mưa làm gió hiện nay qua bài viết này nhé!

1. Đặc điểm của nhà ống 2 tầng 5x20m

●    Nhà ống 2 tầng 5x20m được xây dựng trên mảnh đất hình chữ nhật có chiều rộng 5m và chiều dài 20m. Mẫu nhà này được xây dựng phổ biến tại các khu vực có mật độ dân cư tăng cao, quỹ đất xây dựng ngày càng thu hẹp.
●    Mẫu thiết kế nhà ống 2 tầng 5x20m không yêu cầu diện tích xây dựng quá lớn. Nếu không có đủ đất xây sân vườn, bạn có thể tìm đến các giải pháp như xây sân thượng, giếng trời, xây tum,... để tạo sự thông thoáng cho ngôi nhà.
●    Thiết kế nhà ống 5m x 20m 2 tầng không mất nhiều thời gian thi công, giảm thiểu đáng kể chi phí xây dựng so với các mẫu nhà cao tầng khác.
●    Mặt tiền rộng 5m không quá lớn nhưng nếu biết cách bố trí khéo léo và lựa chọn thiết kế phù hợp sẽ giúp ngôi nhà trở nên nổi bật hơn so với các công trình liền kề.
●    Đa dạng phong cách thiết kế, có thể lựa chọn kiến trúc hiện đại hoặc tân cổ điển tùy theo sở thích của bản thân.
Nhìn chung, mẫu thiết kế nhà 2 tầng 5x20m đáp ứng tốt các tiêu chí về thẩm mỹ, chi phí và diện tích. Vì vậy, chúng phù hợp với tất cả các gia đình ở nông thôn và thành thị.
mẫu nhà ống 2 tầng - 1
 

2. Tư vấn thiết kế tổng thể nhà ống 2 tầng 5x20m

2.1. Phối cảnh ngoại thất

Đặc trưng của mẫu thiết kế nhà ống 2 tầng 5x20m là phần mặt tiền nhỏ và sâu. Vì vậy, phong cách thiết kế hiện đại là ưu tiên hàng đầu để tạo sự thông thoáng. Bạn có thể lựa chọn các hình khối khoa học hoặc kết hợp giữa chất liệu hiện đại và cổ điển để tạo điểm nhấn độc đáo cho ngôi nhà.
Bên cạnh đó, thay vì dùng những mảng tường bí bách, nên ưu tiên dùng kính cường lực trong suốt để tạo độ mở và chiều sâu cho không gian. Chú ý đến hướng ánh sáng, hướng gió để ngôi nhà không bị tối tăm, bí bách. Ngoài ra, có thể thiết kế thêm giếng trời để tận dụng tối đa ánh sáng tự nhiên.

 

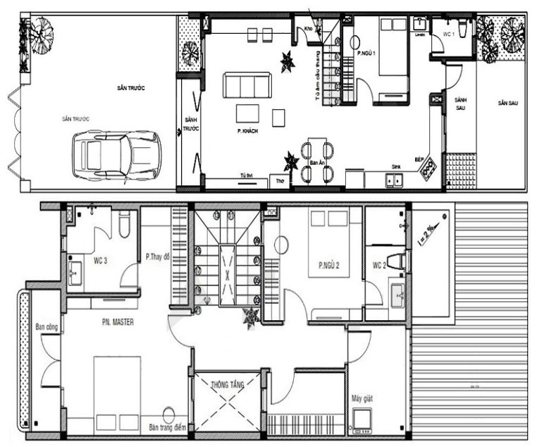
2.2. Gợi ý bố trí các phòng chức năng trong nhà

Mặt bằng tầng 1 bố trí các khu vực như khu vực để xe, phòng khách, nhà bếp, ban thờ và nhà vệ sinh. Trước nhà là khoảng sân rộng làm nơi để xe và sân chơi cho trẻ nhỏ. Vào trong nhà là phòng khách liên thông với nhà bếp để không gian không bị bí bách, ngột ngạt.
Phòng ngủ và nhà vệ sinh được thiết kế phía sau cầu thang. Có thể thiết kế thêm mảng sân rộng sau nhà để phơi đồ, trồng cây.
Mặt bằng tầng 2 gồm có 2 phòng ngủ (1 phòng master, 1 phòng thường) và khu vực giặt đồ. Các phòng có diện tích phù hợp và được bố trí khoa học.

 
bản vẽ nhà ống 2 tầng
 

2.3. Những điều cần lưu ý khi thiết kế nhà ống 5m x 20m 2 tầng

●    Đối với mẫu thiết kế nhà ống 2 tầng 5x20m nên xây dựng thêm giếng trời và các khoảng thông tầng sẽ giúp giải quyết tình trạng chật hẹp, bí bách về không gian sử dụng.
●    Nghiên cứu, phân chia phòng ốc hợp lý trước khi thi công. Có thể thiết kế thông phòng như phòng bếp với phòng khách, phòng thờ với phòng khách,... để tối ưu diện tích và có thêm nhiều không gian sử dụng.
●    Tìm cách nới rộng không gian bằng cách dùng cửa kính để lấy ánh sáng tự nhiên vào nhà. Bố trí ban công, cửa sổ để gió lưu thông vào nhà.
●    Không nên chọn quá nhiều hoặc dùng các món nội thất cồng kềnh. Thay vào đó, nên chọn nội thất thông minh và đa năng.
●    Dự trù chi phí trước khi thi công để chủ động hơn về tài chính.

3. Các mẫu thiết kế nhà ống 2 tầng 5x20m

3.1. Nhà 2 tầng 5x20m thiết kế hiện đại, đơn giản

mẫu nhà 2 tầng - 2


Ngôi nhà được thiết kế theo phong cách hiện đại, không cầu kỳ, không chạy theo xu hướng nên trường tồn với thời gian. Trước nhà có khoảng sân rộng và bên hông nhà là gara để xe ô tô. Hệ thống cửa chính và cửa sổ được làm từ kim loại kết hợp kính. Có thể tạo điểm nhấn cho ngôi nhà bằng một vài chậu hoa hoặc cây cảnh nhỏ.

3.2. Mẫu thiết kế nhà ống 2 tầng 5x20m độc đáo, phá cách

Những mẫu nhà ống 2 tầng mặt tiền 5m với những đường nét độc đáo, phá cách, hiện đại chắc chắn sẽ trở thành xu hướng năm 2024. Họa tiết hoa văn kết hợp với những đường thẳng song song phía trước giúp mặt tiền ngôi nhà trông cuốn hút hơn.
 
mẫu nhà 2 tầng - 3

Mẫu nhà ống 2 tầng 5x20 dưới đây chắc chắn sẽ khiến nhiều bạn đọc gục ngã ngay từ ánh nhìn đầu tiên. Từng đường nét, chi tiết trên nhà được thiết kế độc đáo, sang trọng. Đặc biệt, mẫu thiết kế này có thể tối ưu hóa gió, ánh sáng vô cùng hiệu quả,...
 
mẫu nhà 2 tầng - 4


Mẫu kiến trúc nhà ống 2 tầng lệch mang đến cho bạn không gian sống thông thoáng, hiện đại và vô cùng tiện nghi. Tone trắng chủ đạo khiến ngôi nhà trở nên ấn tượng, hiện đại và sang trọng hơn. Không gian tầng 1 và tầng 2 được kết nối với nhau thông qua cầu thang ngắn và có giếng trời để lấy ánh sáng cho tầng trệt. Đây là một sự sáng tạo rất độc đáo, mới mẻ mà rất ít công trình có được.
 
mẫu nhà 2 tầng - 5

Hay như mẫu thiết kế nhà ống 2 tầng 5x20m dưới đây cũng được nhiều khách hàng đánh giá cao. Điểm nhấn của ngôi nhà là không gian tầng 2 được thiết kế với những thanh gỗ chắn ngang. Bức tường trắng kín phía trước tạo sự bề thế và vững chắc cho ngôi nhà. Đặc biệt, những hình khối đồng nhất được lồng ghép tinh tế với nhau giúp ngôi nhà để lại ấn tượng sâu sắc.
 
mẫu nhà 2 tầng - 6

Nếu bạn đang tìm kiếm mẫu nhà 5x20m 2 tầng 3, 4 phòng ngủ có thiết kế mặt tiền độc lạ thì đừng bỏ qua gợi ý dưới đây. Công trình sử dụng gam màu nhẹ nhàng như trắng, kem, be,... kết hợp với những đường nét uốn lượn nhẹ nhàng, tạo nên tổng thể mềm mại và tinh tế.
 
mẫu nhà 2 tầng - 7
 

3.3. Mẫu thiết kế nhà ống 2 tầng 5x20m 1 tầng tum


Xây dựng thêm tầng tum cho nhà ống 2 tầng 5x20m được nhiều gia đình lựa chọn. Thiết kế này không chỉ giúp gia chủ có thêm không gian sử dụng mà còn tiết kiệm nhiều chi phí xây dựng so với mẫu nhà 3 tầng.
 
mẫu nhà 2 tầng - 8

mẫu nhà 2 tầng - 9
 

3.4. Mẫu thiết kế nhà ống 2 tầng 5x20m tích hợp không gian xanh


Thiết kế không gian xanh ở mặt tiền có tác dụng tăng thẩm mỹ và hạn chế bụi bẩn từ bên ngoài. Điều này giúp nhà luôn sạch sẽ, không khí trong lành. Một điểm cộng khác của kiểu kiến trúc này là có thể hạn chế cái nóng hoặc gió lạnh từ bên ngoài xâm nhập vào nhà.
 
mẫu nhà 2 tầng - 10

mẫu nhà 2 tầng - 11
 

4. Trường Sinh - Đơn vị tư vấn thiết kế và xây nhà trọn gói uy tín, chất lượng


Trường Sinh là đơn tư vấn thiết kế và xây nhà trọn gói uy tín, được nhiều khách hàng đánh giá cao bởi các lý do sau:
●    Kiến trúc sư giỏi, giàu kinh nghiệm, luôn cập nhật các xu hướng thiết kế mới, mang đến khách hàng có những công trình có giá trị thẩm mỹ cao.
●    Đội ngũ thợ thi công làm việc nhiệt tình, có trách nhiệm, cam kết chất lượng và thi công đúng tiến độ.
●    Vật liệu xây dựng chất lượng, an toàn, có xuất xứ rõ ràng.
●    Chi phí thi công hợp lý, báo giá rõ ràng, minh bạch, không phát sinh thêm phụ phí đi kèm.
●    Đầy đủ chế độ bảo hành, luôn sẵn sàng hỗ trợ khách hàng khi cần.
●    Quy trình làm việc chuyên nghiệp, tạo sự hài lòng nhất cho khách hàng khi sử dụng.
Hy vọng với các gợi ý về mẫu thiết kế nhà ống 2 tầng 5x20m trên sẽ giúp bạn đọc có thêm nhiều ý tưởng khi xây nhà. Đừng quên liên hệ đến số hotline: 0984.601.683 - 0975.258.999 - 085.258.9999 của Trường Sinh để biến những ý tưởng trên giấy của bạn thành hiện thực nhé!

 
Quý khách vui lòng để lại thông tin, chúng tôi sẽ liên hệ ngay!
Quý khách vui lòng để lại thông tin, chúng tôi sẽ liên hệ ngay!

Dịch vụ khác

Những điều bạn cần biết về thiết kế nhà 6x18m - Đơn vị thiết kế nhà 6x18m uy tín

Những điều bạn cần biết về thiết kế nhà 6x18m - Đơn vị thiết kế nhà 6x18m uy tín

Nếu bạn đang có nhu cầu xây nhà mà lại sở hữu một mảnh đất có diện tích khiêm tốn thì nhà 6x18m sẽ là một sự lựa chọn lý tưởng. Mẫu nhà này hiện đang đang rất được ưa chuộng đặc biệt là ở chốn thành thị bởi thiết kế đơn giản và chi phí xây dựng hợp lý. Trường Sinh sẽ giúp bạn tìm hiểu kỹ hơn về thiết kế nhà 6x18m trong bài viết sau đây.
Những mẫu thiết kế nhà ống 2 tầng đẹp xu hướng 2026

Những mẫu thiết kế nhà ống 2 tầng đẹp xu hướng 2026

Hiện nay, các mẫu thiết kế nhà ống 2 tầng đẹp luôn là sự chọn lựa số 1 của nhiều gia đình hiện nay. Thiết kế nhà ống 2 tầng không chỉ được yêu thích bởi sự đa dạng về kiểu dáng, đa dạng phong cách mà còn mang tới sự tiện nghi, hiện đại và tiết kiệm chi phí.  Hãy cùng Trường Sinh Group tìm hiểu thông qua bài viết này nhé!
Những điều bạn cần biết khi thiết kế nhà 5x9m

Những điều bạn cần biết khi thiết kế nhà 5x9m

Hiện nay, cùng với sự phát triển của thành phố và đô thị lớn, xu hướng xây nhà trên diện tích đất khiêm tốn, tận dụng tối đa không gian đang trở thành một xu hướng gây “sốt”. Nếu bạn đang có mong muốn thiết kế một ngôi nhà 5x9m để sinh sống cùng gia đình hoặc khai thác kinh doanh nhưng còn chưa biết bắt đầu từ đâu, hoặc chưa tìm được nhà thiết kế uy tín, bài viết sau đây là dành cho bạn. 
Tham khảo các thiết kế nhà cấp 4 đẹp 50m2 đẹp “mê mẩn”

Tham khảo các thiết kế nhà cấp 4 đẹp 50m2 đẹp “mê mẩn”

Các thiết kế nhà cấp 4 đẹp 50m2 vẫn luôn là từ khóa được nhiều người tìm kiếm trong thời gian gần đây. Bởi mẫu nhà này không chỉ sở hữu vẻ hiện đại, đảm bảo tiện nghi cần thiết mà chi phí cũng rất hợp lý. Cùng Trường Sinh tham khảo một số bản thiết kế đẹp, được đông đảo mọi người yêu thích và lựa chọn dưới đây.  
Top 25+ thiết kế nhà kiểu Châu Âu sang trọng và đẳng cấp bậc nhất năm 2025

Top 25+ thiết kế nhà kiểu Châu Âu sang trọng và đẳng cấp bậc nhất năm 2025

Thiết kế nhà kiểu châu Âu là xu hướng chung được nhiều gia đình lựa chọn. Kiểu thiết kế này được đánh giá cao về tính thẩm mỹ, sự tiện dụng và thoải mái. Cùng tìm hiểu những đặc điểm chung của kiểu thiết kế này và chiêm ngưỡng những phong cách thiết kế nhà châu Âu đẹp mê ly bạn có thể tham khảo.
Những mẹo giúp tối ưu thiết kế nhà 4*9 của bạn

Những mẹo giúp tối ưu thiết kế nhà 4*9 của bạn

Bạn đang không biết cách làm cho không gian sống chật hẹp của mình trông rộng rãi hơn thì bài viết thiết kế nhà 4*9 này là dành cho bạn. Nếu bạn đang muốn tìm hiểu về cách thiết kế nhà 4*9 sao cho rộng rãi, thoáng mát thì bài viết này là tất cả những gì bạn cần. Hãy tiếp tục theo dõi bài viết để biết được những mẹo hay giúp căn nhà nhỏ của bạn trở nên rộng lớn và thông thoáng.
49+ Mẫu thiết kế nhà ngang 6m dài 10m cấp 4 đẹp, sang trọng

49+ Mẫu thiết kế nhà ngang 6m dài 10m cấp 4 đẹp, sang trọng

Mẫu thiết kế nhà ngang 6m dài 10m cấp 4 mang đến sự hài hòa về không gian, sự tiện nghi, hiện đại không hề thua kém các mẫu nhà ở khác. Vậy nên, xu hướng lựa chọn thiết kế nhà ngang 6m dài 10m cấp 4 được rất nhiều người lựa chọn. Dưới đây là một số mẫu thiết kế nhà cấp 4 ngang 6m dài 10m mà bạn nên tham khảo để có sự chọn lựa tốt nhất.
Mẫu thiết kế bếp nhà cấp 4 đơn giản, tiện nghi

Mẫu thiết kế bếp nhà cấp 4 đơn giản, tiện nghi

Bên cạnh phòng khách, phòng ngủ thì khâu thiết kế bếp nhà cấp 4 cũng rất quan trọng. Việc bố trí gian bếp hiện đại và tiện nghi sẽ giúp việc nấu ăn trở nên hứng thú hơn, tốt về mặt phong thủy và tối ưu không gian. Cùng tìm hiểu rõ hơn về kinh nghiệm thiết kế và các mẫu nhà bếp cấp 4 đẹp nhất mà chúng tôi chia sẻ dưới đây.
101+ Mẫu thiết kế nhà cấp 4 đẹp, sang trọng, hiện đại

101+ Mẫu thiết kế nhà cấp 4 đẹp, sang trọng, hiện đại

Thiết kế nhà cấp 4 đã và đang trở thành xu hướng lựa chọn số #1 của nhiều gia đình hiện nay nhất là ở khu vực nông thôn, ngoại thành. Các mẫu thiết kế nhà cấp 4 đẹp hiện nay rất đa dạng, đáp ứng được mọi yêu cầu; đảm bảo được sự hiện đại, tính thẩm mỹ, thời gian và chi phí xây dựng. Để lựa chọn được mẫu thiết kế nhà cấp 4 phù hợp thì bạn đừng bỏ lỡ bất kỳ nội dung nào dưới đây.  
[Cập nhật] BST thiết kế nhà đẹp 2 tầng MỚI NHẤT

[Cập nhật] BST thiết kế nhà đẹp 2 tầng MỚI NHẤT

Nhà 2 tầng là kiểu nhà ở phổ biến ở Việt Nam hiện nay từ thành thị cho đến nông thôn. Vậy nên, các mẫu thiết kế nhà đẹp 2 tầng luôn nhận được sự quan tâm của rất nhiều người. Xây dựng Trường Sinh là một trong những đơn vị thiết kế nhà 2 tầng đẹp, giá tốt; đảm bảo sự hiện đại - tiện nghi cho không gian nhà ở. Liên hệ tới hotline 0984.601.683 - 0975.258.999 để được báo giá và tư vấn nhanh chóng!  
50+ Mẫu thiết kế nhà 2 tầng 7x11m đẹp mê ly, hot nhất 2025

50+ Mẫu thiết kế nhà 2 tầng 7x11m đẹp mê ly, hot nhất 2025

Với lối thiết kế đa dạng và chi phí đầu tư hợp lý, mẫu thiết kế nhà 2 tầng 7x11m luôn nhận được sự quan tâm của nhiều gia chủ. Vậy thì hãy cùng Trường Sinh chiêm ngưỡng các mẫu nhà 2 tầng 7x11m đẹp và điểm qua một số lưu ý khi xây dựng qua bài viết này nhé!
TOP 10+ thiết kế nhà cấp 4 4 phòng ngủ đẹp, được yêu thích nhất

TOP 10+ thiết kế nhà cấp 4 4 phòng ngủ đẹp, được yêu thích nhất

Bạn đang có kế hoạch xây nhà cấp 4 với 4 phòng ngủ nhưng chưa biết nên chọn mẫu nào. Đừng lo lắng, dưới đây là TOP các thiết kế nhà cấp 4 4 phòng ngủ đẹp, hiện đại, chi phí hợp lý và được đông đảo mọi người yêu thích mà bạn có thể tham khảo thêm.
Các mẫu thiết kế nhà 7x20m hiện đại, sang trọng

Các mẫu thiết kế nhà 7x20m hiện đại, sang trọng

Hiện nay, mẫu nhà 7x20m đang ngày càng trở nên phổ biến ở cả thành thị lẫn nông thôn bởi đây là mẫu nhà được cho là phù hợp với nhu cầu sử dụng của nhiều gia đình. Cũng vì thế mà khâu thiết kế cần đặc biệt chú trọng để cho ra ngôi nhà với công năng cao nhất và vừa ý gia chủ. Nếu bạn chưa có nhiều ý tưởng cho việc thiết kế nhà 7x20m thì đừng bỏ qua bài viết sau đây của Trường Sinh.
[Tổng hợp] 101+ Mẫu thiết kế nhà cấp 4 3 phòng ngủ đẹp, tiết kiệm chi phí

[Tổng hợp] 101+ Mẫu thiết kế nhà cấp 4 3 phòng ngủ đẹp, tiết kiệm chi phí

Mẫu thiết kế nhà cấp 4 3 phòng ngủ được nhiều người lựa chọn nhiều hiện nay nhất là các gia đình trẻ, hộ gia đình có ít thành viên. Mẫu thiết kế nhà ở này rất đa dạng, hợp xu hướng nên mang tới không gian tiện nghi, hiện đại, dễ dàng lựa chọn đồ nội thất. Cùng tìm hiểu chi tiết trong nội dung bài viết dưới đây để hiểu rõ hơn.
Thiết kế nhà 2 tầng 60m2 (4x15m) đẹp, đầy đủ bản vẽ chi tiết

Thiết kế nhà 2 tầng 60m2 (4x15m) đẹp, đầy đủ bản vẽ chi tiết

Thiết kế nhà 2 tầng 60m2 (4x15m) được nhiều người lựa chọn vì mang tới sự tiện nghi, hiện đại, sang trọng cho ngôi nhà. Nếu như bạn vẫn còn phân vân mà không biết nên lựa chọn mẫu thiết kế nào thì hãy tham khảo những thông tin chi tiết dưới đây.